Verkauft
Beschreibung:
Im Angebot steht im Alleinauftrag ein modernes Stadthaus mit vielfältigen Nutzungsmöglichkeiten, z.B. für Gastronomie / Pension, o.ä.Dieses lichtdurchflutete, mit großen Fenstern und Galerie umgebaute Gebäude bietet ein einzigartiges und unvergleichbares Flair mit mediterranen Stilelementen.
Das Grundstück liegt laut Flächennutzungsplan in einem "besonderen Wohngebiet" (WB). Somit scheint nach Baunutzungsverordnung auch eine teil oder gesamt gewerbliche Nutzung des Objektes möglich. Beispielsweise als Laden, Betrieb des Beherbergungsgewerbes oder Schank- und Speisewirtschaft. Aufgrund der derzeitigen Wohnnutzung, müsste hierfür ein Nutzungsänderungsantrag gestellt werden.
Das einzigartige Stadthaus wurde im Jahr 2010 kernsaniert und befindet sich in hervorragender Lage, im historischen Stadtkern der Stadt Teltow, unweit der Berliner Stadtgrenze.
Es kann spätestens ab 01.09.2024 bezugsfrei übergeben werden.
Aufgrund seiner derzeitigen Raumaufteilung und Größe, würde sich das Objekt hervorragend zur Nutzung einer Kombination aus Gastronomie und Beherbergung oder zur gewerblichen Zimmervermietung eignen.
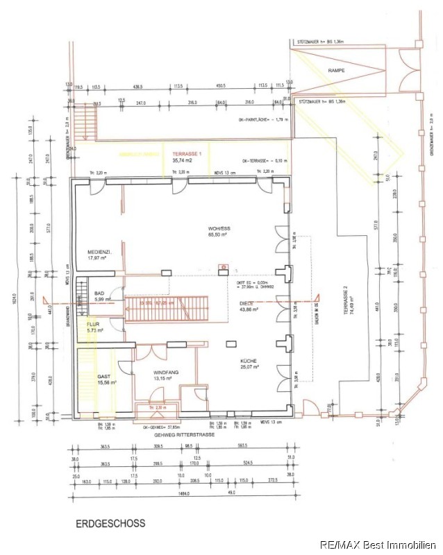
Es verteilen sich über Erd-, Ober- und ausgebautem Dachgeschoss insgesamt ca. 611,79 m² Nutzfläche, 23,98 m² Verkehrsfläche und 180,82 m² Nutzfläche im Keller inklusive Tiefgarage.
Auf Grundlage der derzeitigen Wohnnutzung, könnte Ihnen dieses Objekt bereits 11 separate Zimmer bieten. 1 Zimmer im EG, 5 Zimmer im OG und 5 Zimmer im DG. Durch den offenen Grundriss, könnten die übrigen Flächen (Wohn-/ Esszimmer, Flure) sowohl im Erdgeschoss, als auch im Obergeschoss, nach Ihren Bedürfnissen umgestaltet werden.
Das großzügige Erdgeschoss, inkl. Bad, Küche, Abstellraum und riesigem Wohn-Essbereich könnte hervorragend für Gastronomie nutzbar gemacht werden.
Wie im Erdgeschoss erreichen Sie auch im Obergeschoss alle Zimmer vom zentralen Flur aus.
Dies bietet hervorragende Vorrausetzungen für die Nutzung als Beherbergungsunterkunft.
Neben den bereits 3 vorhandenen Bädern, befinden sich in dem Objekt außerdem 2 Räume, die man aufgrund ihrer Lage in der Immobilie, zu weiteren Sanitärräumen umbauen könnte.
Im Kellergeschoss finden Sie auf insgesamt ca. 181 m² Nutzfläche, 3 Tiefgaragen mit E-Ladesäule, 2 Kellerräume sowie einen Hausanschluss und einen Heizungsraum vor.
Das Objekt bietet ebenfalls das Potential, in 2 separate Einheiten aufgeteilt zu werden.
Weitere Stellflächen können auf dem gepflasterten Innenhof geschaffen werden.
Der Haupteingang des Hauses ist zum historischen Stadtkern hin ausgerichtet. Die Zufahrt zum Grundstück wird grundbuchlich über das Nachbargrundstück per Geh-, Fahr- und Leitungsrecht gesichert.
Das Grundstück liegt im Denkmalbereich "Altstadt Teltow" und unterliegt damit Auflagen des Sanierungsträgers der Stadt Teltow. Es liegt ebenfalls im Bodendenkmalschutzbereich "historischer Ortskern Teltow". Jedoch ist das Haus nach telefonischer Auskunft bei der Denkmalschutzbehörde, nicht in der Denkmalliste als Einzeldenkmal vermerkt.
Ausführliche Infos erhalten Sie gerne nach Ihrer Anfrage per Mail.
Nach Ihrer schriftlichen Kontaktanfrage übersenden wir Ihnen einen 360° Rundgang
und beantworten sehr gerne etwaige Rückfragen.
Lagebeschreibung:
Makro Lage:Teltow ist mit rund 28.000 Einwohnern die bevölkerungsreichste Stadt im brandenburgischen Landkreis Potsdam-Mittelmark. Sie liegt direkt am südwestlichen Stadtrand von Berlin. Aufgrund seiner angrenzenden Lage zu dem Berliner Bezirk Zehlendorf und dem Brandenburgischen Kleinmachnow sowie der hervorragende Infrastruktur, zählt die Stadt Teltow zu den am stärksten wachsenden und beliebtesten Städten Brandenburgs.
Die Infrastruktur der Stadt ist perfekt an die Nähe zur Großstadt angepasst. Teltow verfügt über drei Grundschulen, drei Oberschulen, ein Oberstufen- und Ausbildungszentrum sowie über eine große Anzahl an Kindertagesstädten. Ebenso befinden sich in Teltow alle Geschäfte für den täglichen Bedarf, Ärzte, Apotheken, Banken, Restaurants und alles, was man zum Leben benötigt.
Auch die Verkehrsinfrastruktur ist hervorragend ausgebaut. Über den Teltower Damm, die Lichterfelder Allee oder Kleinmachnow sind Sie in kürzester Zeit in Berlin und dessen Innenstadt.
Zudem sind Sie in ca. 30 min am BER, in ca. 15 min an der A 10 oder der A115.
Teltow ÖPNV ist ebenfalls gut ausgebaut. Er biete eine gute Anbindung an die umliegenden Gemeinden und Berlin. Vom S-Bahnhof Teltow aus, erreichen Sie über die S25 und S26, mehrere Haltestellen des Berliner S-Bahn- und Busnetzes. Über den nahegelegene Regionalbahnhof Teltow besteht eine gute Verbindung zum Netz der Deutschen Bahn.
Die Stadt bietet Ihnen, aufgrund seiner naturnahen Lage, zudem eine Vielzahl an Naherholungs- und Freizeitmöglichkeiten sowie ein Maximum an Lebensqualität.
Mikro-Lage:
Das Objekt liegt ruhig gelegen in dem historischen Stadtkern von Teltow. Sie erreichen fußläufig einige Einkaufsmöglichkeiten, Apotheken, eine Bank sowie Behörden, Ärzte und Restaurants.
Ebenso befinden sich fußläufig mehrere Bushaltestellen sowie der S-Bahnhof Teltow.
Durch die zentrale Lage sind Sie auch mit dem Auto hervorragend angebunden.
Zudem ist dies ein Standort von historischer Bedeutung. Das Grundstück ist Teil des ehemaligen Ritterguts, in dem im 16. Jh. beschlossen wurde sich den Lehren Martin Luthers anzuschließen und somit die Reformation in Brandenburg einzuläuten.
Ausstattung:
Energieausweis:
- A+
- A
- B
- C
- D
- E
- F
- G
- H
- Baujahr:
- 2010
- Endenergieverbrauch:
- 79,9 kWh/(m²a)
- Energieausweis:
- Verbrauchsausweis
- Energieeffizienzklasse:
- C
- Energieausweis gültig bis:
- 11.11.2031
- wesentlicher Energieträger:
- Gas
- Baujahr lt. Energieausweis:
- 2010
Ausstattungsbeschreibung:
Wie bereits beschrieben, wurde das Objekt im Jahr 2010/11 vollständig kernsaniert. Eine konkrete Bau-und Modernisierungsbeschreibung übersenden wir Ihnen nach Ihrer Anfrage.Die wichtigsten Details im Überblick:
Ausstattung Gebäude:
- massiv gebaut
- voll unterkellert
- Treppenhaus in Stahlkonstruktion
- Satteldach gedämmt mit Ziegeln eingedeckt
- Fassade gedämmt und neu verputzt
- dreifachverglaste Holzfenster mit elektr. Rollläden im EG
- Wände glatt verputzt und gemalert
Haustechnick:
- Gaszentralheizung aus 2010 mit Brauchwasserspeicher
- Warmwasser über Zentralheizung
- Fußbodenheizung in allen Räumen
- komplette Elektrik neu aus 2010
- Garagen mit E-Ladestation
- Trinkwasser Entkalkungsanlage
Ausstattung EG:
- einzigartiges Raumgefühl durch offenen Grundriss und ca. 4 m hohe Decken
- bodentiefe- und deckenhohe Fenster mit zusätzlicher Heizung in der Leibung
- Zugänge zu den Terrassen mit angrenzendem Garten
- 9 kW Kaminofen und indirekte Beleuchtung im Wohnzimmer
- hochwertige EBK inkl. Elektrogeräte von 2010 mit Kücheninsel, Tresen und Vorratsraum
- Gäste WC mit Dusche
- großer Eingangsbereich mit offener Garderobe und angrenzendem Gästezimmer
- Wohnzimmer und Gästezimmer mit Dielen, der Rest ist gefliest
Ausstattung OG:
- Master Schlafzimmer mit direktem Zugang zum Badezimmer und Balkon
- Badezimmer mit bodentiefer Dusche, Badewanne, WC, Bidet und 2 Waschbecken
- separate Waschküche mit 2 Waschmaschinenanschlüssen
- drei weitere geräumige Zimmer
- offenes Treppenhaus mit großem Flur und Zugang zum Balkon
- Dielen in den Wohnräumen, Flur, Bad und Waschküche gefliest
Ausstattung DG:
- tolles Flair durch offene Dachbalken
- Badezimmer gefliest, mit Dusche und Wanne, 2 Waschbecken sowie Waschmaschinenanschluss
- Atelier mit hohen Decken, viel Tageslichteinfall und gefliest
- 4 weitere Zimmer mit Dielenböden
- zentraler Flur
Sonstige Angaben:
Weitere Angebote finden Sie unter www.remax-tb.de!Bei dem Preis handelt es sich um einen Mindestverkaufspreis.
Die in diesem Exposé gemachten Aussagen beruhen auf Auskünften Dritter. Wir übernehmen daher keine Haftung für die hier gemachten Angaben, insbesondere für Preise, Flächenangaben, Grundrisse oder Lageskizzen.
Haben Sie bitte dafür Verständnis, dass nur schriftliche Anfragen mit vollständigen Angaben bearbeitet werden können!
Dieses Angebot ist freibleibend, ein Zwischenkauf bleibt vorbehalten. Verkäufer und Käufer verpflichten sich, gemäß § 656c BGB, die nach Abschluss des Kaufvertrages fällige Provision in gleicher Höhe zu zahlen.
Sie wollen mehr erfahren?
Wenn Sie uns eine Nachricht über das Kontaktformular senden, melden wir uns schnellstmöglich bei Ihnen:

























